파지사유 공사일지 : 공간은 무엇으로 공간이 될까요?
“잡동사니에 대한 강조가 가장 중요하다.
도시란 바로 이런 것, 즉 서로를 보완하고 지탱해주는 잡동사니이기 때문이다…
도시의 얽히고설킨 질서는 여러모로 대단히 경이적인 현상이다.
이와 같은 상호 의존하는 여러 용도들의 생생한 집합체,
이런 자유와 이런 삶을 있는 그대로 이해할 수 있도록 만드는 일을 주저해서는 안 되며, 우리가 알지 못한다는 사실을 항상 의식해야 한다.”
―제인 제이콥스, 《미국 대도시의 죽음과 삶》
안타까운 공간
공간 디자인을 시작한 뒤로, 나는 어떤 공간이든 한 번씩 더 살피는 버릇이 생겼다. 식당이든 카페든 사적인 공간이든 공적인 공간이든, 나는 그곳을 ‘공간’으로써 본다. 친구의 집은 한편으로 그냥 친구의 집이지만, 다른 한편으로는 어떤 점에선 ‘잘 계획된 공간’, 어떤 점에선 ‘디자인되지 못한 공간’이다. 후자의 시선으로 볼 때, 나는 내가 디자인을 하면서 참고할만한 부분이 있는지, 어떤 점이 좋고, 어떤 점이 나쁜지 분석한다. 어떤 것을 지향하고, 어떤 것을 지양해야할지를 생각한다. 그런데 이런 눈을 가지고 보면, 많은―어쩌면 우리 주변의 대부분의―공간들이 잘 계획되어있지 못하다. 거의 모든 공간들이 ‘되는대로’ 만들어져있다. 우리가 살아가는 집들은 우리의 생활, 우리의 일상과 관계없이 만들어져있다. 우리는 우리에게 맞춘 집에 사는 것이 아니라, 집에 맞추어 산다. 상업 공간 역시 크게 다르지 않다. 인테리어는 비용에 맞춰져있다. 이렇게 되면 공간은 대부분 비슷한 문법을 따른다. 주인이나 손님의 요구, 필요에 맞춘 가게가 아니라, 비용 대비 효율에 맞춰져있다. 이런 어쩔 수 없는 상황에 따른 결과를 꼭 나쁜 것이라 말할 순 없겠지만, 안타깝다는 생각이 드는 것도 사실이다.
내가 지난 10년간 공부하고 생활해온 문탁네트워크(이후 ‘문탁’)는 안타까운 공간의 대표적인 예이다. 한편으로 그것은 우리가 집에 맞추어 사는 것과 마찬가지 이유로 그럴 수밖에 없는 이유가 있었다. 문탁은 베드타운인 용인 수지의 주거용 빌라에 터를 잡았다. 당연히 구획은 주거에 맞추어져있고, 공부 공동체의 생활의 모습은 지난 10년 동안 양적으로나 질적으로나 많은 변화를 겪어왔다. 이런 용도의 변화를 공간은 충분히 따라오지 못했다.
그러나 공간이 그러한 변화를 따라잡을 기회가 전혀 없었던 것도 아니다. 문탁이 가진 공간에 비해 인원과 활동이 넘쳐나자 문탁은 건너편 식당이었던 공간을 계약해 두 공간으로 확장하였고, 여기에 ‘마을 공유지 파지사유(이하 ‘파지사유’)’를 만들었다. 공간이 늘어나자 문탁은 공부와 세미나 공간으로, 파지사유는 식사와 활동의 공간으로 용도를 분리했다. 각각의 공간엔 서로 다른 단위들이 자리를 잡았다. 하지만 이때에도, 두 장소는 ‘공간’으로 충분히 디자인되지는 못했다. 내가 보기에 문탁은 여전히 어설픈 가정집의 분위기를 벗어나지 못했고, 새로 생긴 파지사유 역시 어설프게 흉내 낸 카페의 모습이 되었다. 문탁 공간에는 언제나 세미나, 강좌 포스터가 아무 곳에나 덕지덕지 붙어있고, 긴 호흡의 계획보다는 당장의 필요에 의해 벽을 나누고 공간을 구획했다. 마을 공유지로 계획한 파지사유는 외부 유입이 없어 문탁 회원들의 사랑방처럼 사용되었고, 공동체 구성원들의 욕망에 따라 나타나고 사라진 다양한 단위들이 공간을 차지하고 없어진 흔적이 곳곳에 남아있었다.
지원이가 알아서 해줘
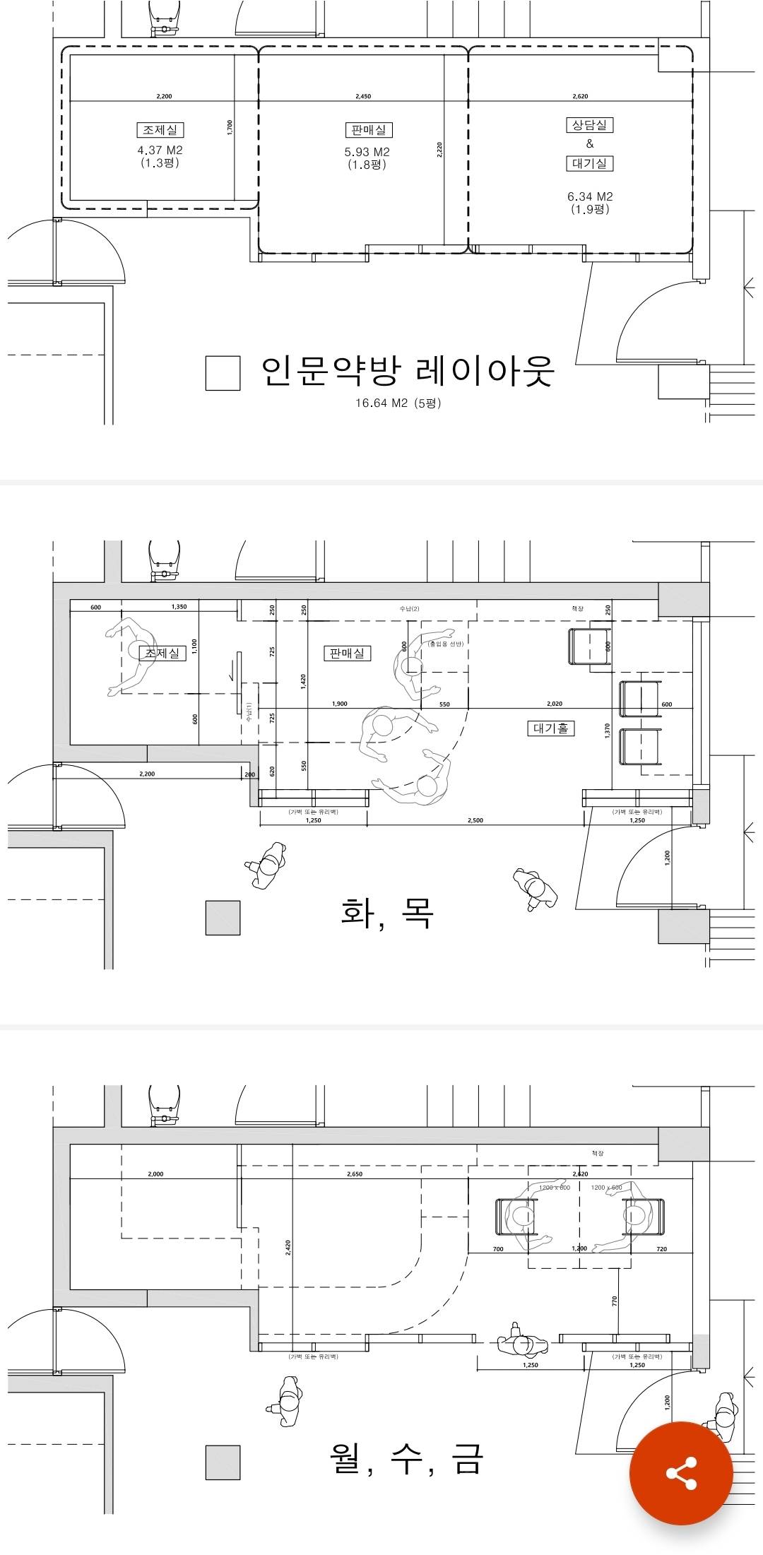
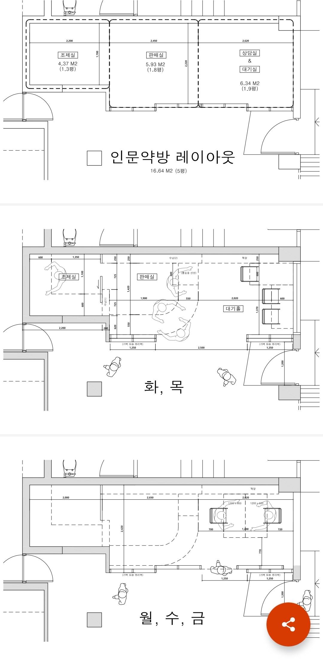
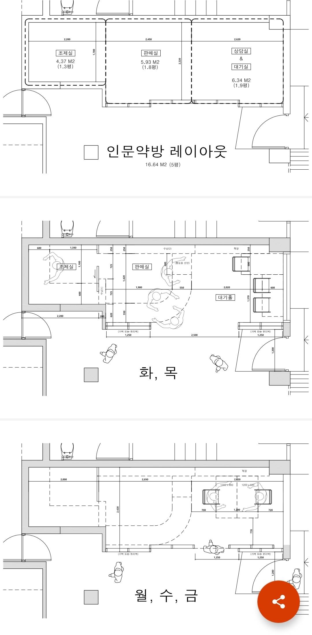
그런데 이번에, 나에게 기회가 왔다. 어느 날 이희경 선생님이 전화를 하셨다. “지원아 우리 파지사유 리모델링해야 하는데 시간 되니?” 듣자하니 문탁과 파지사유가 새로운 단위로 분화된단다. 문탁은 벽지를 교체하는 정도였지만, 파지사유는 더 활동적이고 의지를 가진 새로운 단위들의 공간으로 탈바꿈한다. 무엇보다 전체 공사에서 가장 중요한 단위는 파지사유에 새로이 출범하는 ‘인문약방, 일리치 약국’ 공간을 신설하는 것이었다. 파지사유 전체 40평 공간 중 약 10평을 차지하는 새로운 구획이 만들어지고, 이는 나머지 40평 공간의 분위기에도 큰 영향을 미친다. 좋은 계획을 통해, 이후 또 다시 지저분한 공간이 되는 것을 막고, 공부 공동체의 공간도 충분히 디자인 될 수 있다는 것을 보여줄 수 있는 기회였다. “언제부터 하면 되죠?”
회의에선 필요와 그에 따른 구획을 중심으로 논의가 이루어졌다. 약국엔 조제실이 필요하고, 조제실엔 어떤 기계가 들어가고, 약국의 운영진인 둥글레, 겸목, 기린의 욕망에 따라 테이블과 책장, 약장의 대략적인 배치가 이루어졌다. 필요한 수납의 양은 정해져 있었고, 그 외의 디자인적인 부분에서 고집스러운 사람은 없었다. 한정된 파지사유 공간에 각기 다른 욕망이 섞여들며 구획을 정하기까지 적잖은 시간이 소요되었지만, 공간 회의를 해봤던 경험 때문인지, 세미나로 다져진 토론 능력과 공동체 10년의 양보와 의견 조율의 경험 때문인지, 이렇다 할 갈등은 없었다.
그런데 문제는 그 다음이었다. 대략의 구획이 정해지자 공간 회의가 끝났다. 이후는 “지원이가 알아서 해줘~”의 연속이었다. 난 당황스러웠다. 보통의 공간 논의는 이것을 시작으로 하여, 공간을 채울 활동, 공간의 미적인 측면 등의 이야기들이 이루어져야 한다. 구획을 결정하는 것 외에도 공간에는 수많은 토론거리가 있다. 난 어쩌면 이것이 문제였는지 모르겠다고 생각했다. 구체적인 설계와 디자인에 대한 논의가 중요하지 않은 것이기 때문에, 공사가 끝난 뒤에 빠트린 것을 챙기기 시작하고, 그렇게 되면 애초에 의도와 달리 공간이 ‘덕지덕지’가 된다. 난 일리치 약국을 중심으로, 특히 약사인 둥글레와 공식 회의 이후에도 구체적인 것들, 바람들을 수집하는 회의를 이어갔다. 약국 근무 경험을 위주로 둥글레는 이야기했다. 그러나 여전히 공백이 많았고, 나는 내 지난 경험에 따라 나름대로 그것들을 채워 나갈 수밖에 없었다. 그러나 아직까진 차라리 이런 상황이 좋을 수도 있겠다는 생각을 가지고 있었다. 공간은 내 계획대로 만들어질 것이기 때문에.

막바지에 쏟아지는 요구들
그런데 인테리어 중간에 대뜸 ‘용기내 가게’라는 단위가 있다며 블랙커피 선생님에게 전화가 왔다. 파지사유 실내에 리필 스테이션인 용기내 가게가 생길 것이며, 기존의 가구를 활용해 배치할 것이니 따로 공사를 할 내용은 없다는 것이었다. 그런데 한 가지, 가구를 배치할 한쪽 벽에 그곳이 용기내 가게라는 것을 알만한 ‘어닝(차양)’을 만들어줬으면 좋겠다는 것이었다. “어떤 어닝이요? 천막으로 만들면 되나요?” 전체 그림과 계획 속에서 생각하던 나는 당황스러웠다. 왜 처음에 이야기하지 않았을까? “천은 우리가 씌울 거니까 지원이는 프레임만 만들어주면 돼요!” 좋은 공간이 되기 위해 디자이너는 ‘전체’를 생각해야한다. 그래서 이 공간이 유기적으로 어울리는 공간이 되도록, 비율과 색감, 마감재 등을 적절히 통일하고자 한다. 실내 어닝이라는 발상 자체가 나는 너무 촌스럽다고 생각했다. 그래도 이 정도는 수용할 수 있었다.
그러나 이것은 끝이 아니라 시작이었다. 공사가 막바지로 가고, 어느 정도 마감이 되고 끝이 보이기 시작하자 속속 사람들이 등장했다. 그 다음은 ‘생태 공방’의 달팽이님이 고집을 부리기 시작했다. “우리는 간판을 이걸 달아야 해!” 난 외부의 유입이 중요한 일리치 약국엔 특히 가게의 얼굴인 파사드(건축물의 주된 출입구가 있는 정면부)가 중요하다고 생각했고, 비교적 공동체 내부 활동인 다른 단위들에는 통일성을 부여해 일리치 약국이 강조되면 좋겠다고 생각했다. 그러나 이런 나의 계획에 빠듯한 공사비를 생각하면 충분한 예산 확보가 어려웠기 때문에, 나는 공사를 통해 버는 내 인건비의 일부를 간판 제작비용으로 사용하기까지 했다. 그러나 이들은 나름의 디자인으로 간판을 만들어둔 것이다.
누구는 어디선가 가구를 들고 와선 “이거 여기다 놓자”고 하고, 누구는 계획에 없던 주문을 하고…. 난 쏟아지는 이 비계획적인, 그리고 한 가지밖에 생각할 줄 모르는 요구들을 들을 때마다 한숨을 푹푹 쉬며 ‘전체를 디자인 한다’라는 생각을 조금씩 포기 ‘당했다’. 너무 많은 사람과 단위들, 욕망들, 이걸 하나의 디자인으로, 통일성을 부여하고 싶단 생각은 욕심이었던 걸까? 난 생각을 바꿨다. ‘일리치 약국만이라도 잘 하자’. 그러나. 길드다의 사장님이자 일리치 약국의 사장님이기도 한 이희경 선생님은 공사 막바지에 갑자기 굴러다니던 칠판을 주워 나에게 오시더니, “이걸 반으로 잘라서 하나는 입간판을 만들고, 하나는 내부 간판을 만들라”고 하셨다. “여기가 뭐하는 곳인지를 모르겠어!” 왜 이걸 이제 말 하냐는 이야기는 씨알도 안 먹힐 것이었다. 남은 칠판을 왜 저기에 두었을까 후회해도 이미 늦었다.
요구들을 처리하고 고민하느라 늘어진 공사 기간 때문에, 사람들은 이제 조금씩 “언제 끝나니?”를 묻기 시작했다. 내 속을 몰라주는 공동체 구성원들에게 서운해 하며, 난 약간의 자포자기 심정으로 마감을 서둘렀다. ‘안타까운 공간’을 ‘디자인 된 공간’으로 바꾸겠다는 것은 너무 순진한 생각이었던 건지도 모른다. 시간과 예산도 문제였지만, 사람들과 충분히 내 생각들을 공유하고 의논하지 못한 부족함도 큰 몫을 했다. 공사가 시작되고서라도 단위들을 모아서 더 여러번의 회의를 거쳐야 했을까? 더 집요하게 물어야 했을까? 공사가 끝나기만 기다렸다는 듯, 물 밀 듯 밀려들어오는 제각각의 재활용 가구들, 각 단위가 만든 홍보용 현수막들이 들어오는 모습을 무력하게 지켜보았다. 그나마 일리치 약국의 힘주어 만든 예쁜 가구들과, 속 모르고 웃고 있는 이반 일리치의 얼굴이 들어간 간판이 내 위안이었다.

공간은 무엇으로 공간이 되는가?
질문들을 뒤로한 채 나는 파지사유 공사로 미뤄둔 다른 현장들을 시작했다. 이 공사들에서 나는 ‘지원이’가 아닌, ‘작가님’이 되었다. 내 계획, 내 머릿속의 통일성, 이런 것들이 다시 실현되는 것을 느끼며 한동안은 파지사유 공사에서 던졌던 질문에 답을 찾은듯했다. ‘그래, 내가 있어야 할 자리는 여기야’ 그러나 그것도 오래 가지는 못했다. 정도의 차이가 있을 뿐, 완벽하게 통제되는 현장이란 없다. 비용, 기한, 무리한 요구와 개인적인 취향과 같은 것들은 이내 내 생각과 뒤섞이며 더 자주 혼종적인 공간들을 만들어냈다. 게 중에는 간혹 이런 섞임이 오히려 내가 예상했던 것보다 공간을 풍성하게 만들어주는 경우도 있었다. 이건 설명이 되지 않았다. 파지사유 공사의 극단적인 희비의 경험 때문인지, 그간 이런 드문 경우에는 기뻐하고, 대부분의 잘못된 공간 활용에 클라이언트의 ‘공간에 대한 이해의 부족’을 탓하던 나를 발견했다. 난 더 근본적인 질문을 던지지 않을 수 없었다. 과연 ‘더 좋은 공간’이란 것이 존재할까? 존재한다면 그것은 어떻게 만들어지는 걸까? 나는 단지 디자인 한다는 사람이 보기에 지저분하지 않을 뿐인 공간을 이런저런 디자이너와 건축가를 빌어 ‘좋은 공간’이라며 은근히 권위적인 어조로 설득하고 있었던 것은 아닐까? 그렇게 질문을 바꾸자, ‘뜨끔’하며 얼마 전 읽었던 책이 떠올랐다. 도시 계획가인 제인 제이콥스가 쓴 《미국 대도시의 죽음과 삶》.
그녀는 책에서 도시 계획가들의 크나큰 실수 중 하나가, 사람들의 구체적인 삶을 살피지 않은 채 ‘좋은 도시’를 상상하고 계획한다는 것이라고 지적한다. 계획가들은 아이들의 안전과 건강을 위해 도시에 놀이터를 만들지만, 실상 놀이터는 비행 청소년들의 소굴이 되거나, 아이들을 위한 감옥이 된다. 이렇게 되는 것은 도시의 다양한 이용자들, 구성원들의 욕망이 만들어 내는 복잡성을 이해하려고 하기보다, 우리가 안전, 놀이라고 쉽게 생각하는 기준들에 맞추어 공간을 구획하고 위치시키기 때문이다. 제인 제이콥스는 아이들끼리 모여, 이러저러하게 놀 수밖에 없는 한갓진 위치에 놀이터를 만들기보다, 차라리 차도를 줄이고 보도를 9m로 늘려 아이들이 도시를 탐험할 수 있는 조건을 만들기를 제안한다. 내가 이해하기로 그녀의 제안은 도시는 만들어‘지는’ 것이지, 만들어‘주는’ 것이 아니라는 생각에서 비롯된다. 이때 계획가의 역할은 이러저러한 기준을 세우기에 앞서, 구체적인 사람들의 삶을 들여다보는 것이다. 이렇게 보니 도시 계획가와 공간 디자이너의 역할이 어쩌면 크게 다르지 않다는 생각이 든다. 처음 책을 읽을 때는 왜 이렇게 보지 못했을까.
나는 바쁘게 현장들을 돌다가, 내가 만들어‘주려’ 했던 파지사유 공간이 어떻게 활용되고 있을지 궁금했다. 약간의 두려움, 그리고 약간의 기대를 가지고 파지사유를 들렀다. 또 포스터가 붙었을까? 용기내 가게의 천은 걸렸을까?…처음 눈에 들어온 것은 역시 일리치 약국이었다. 그 수많은 요구들에도 불구하고 어느 정도 내 디자인이 있었다. 그리고 들어선 파지사유에는 마침내 어닝 천이 걸린 용기내 가게가 있었다. 난 잠시서서 그곳을 바라보았다. 그런데, 나쁘지 않았다. 내 머릿속에 계획된 통일성 같은 것은 찾아볼 수 없었지만, 그들이 손수 만든 패치워크, 재활용한 선반과 가구들은 그들의 활동을 잘 표현하고 있었다. 난 이전과는 다른 눈으로 공간을 보고자 노력했다. 멀리서 전체를 조망하는 설계자가 아니라, 구체적인 삶의 관찰자로. 나쁘지 않은 게 아니라, 좋았다. 그리고 다시 돌아 본 일리치 약국. 구체적인 시선으로 보았을 때, 난 오히려 내가 일리치 약국이 무엇을 하는 공간인지에 대해 잘 모른 채 디자인을 한 건 아닐까? 라는 생각이 들었다.
난 포스터와 간판들, 그리고 이들이 늘 해왔던 활동들을 애써 무시한 채, 그림을 만들고자 했다. 그게 나의 ‘이상’과 충돌하고, 양립할 수 없다는 것을 알았기 때문이다. 그런데 그 이상이라는 것은 무엇이었던 걸까? 공간 디자인을 시작하고 내가 가지게 된 눈이라는 것은 얼마나 고집스럽고 일방적인 시선이었나…. 이런 반성적인 생각에 도달하긴 했지만, 그래도 솔직히 억울한 점이 아주 없는 것은 또 아니다. 여전히 어떤 점에선 내가 옳았다는 생각이 들기도 한다. 그러나 나는 어느 한쪽이 옳고 그름의 절대적 우위에 서는 것이 아니라는 점을 깨닫는다. 나의 계획과 이들의 활동이 엮여가며, 파지사유는 또 새로운 공간으로 만들어 질 것이다. 다만 확실한 것은, 그러한 공간의 변화를 바라보는 내 눈이, 더 이상 안타깝다는 생각을 하지는 않을 것이라는 점이다. 그리고 나 역시 이 공간을 채워갈 활동 중 하나이므로.
글_김지원

'지난 연재 ▽ > 나는만드는사람입니다' 카테고리의 다른 글
| [만드는사람입니다] 정크스페이스, 뒤편으로 쫓겨난 흐름들 (0) | 2022.06.21 |
|---|---|
| [만드는사람입니다] ‘짱어탕’을 끓이듯이 마감하기 (0) | 2022.05.12 |
| [만드는사람입니다] 인간이라는 비틀린 재목에서 (0) | 2022.03.08 |
| [만드는사람입니다] 현장의 ‘잡일’하는 ‘아줌마’들 (0) | 2022.02.11 |
| [만드는사람입니다] 마찰과 저항을 마주하기 (0) | 2022.01.06 |
| [만드는사람입니다] 얽거나 짜서 만드는 방법 (0) | 2021.12.02 |
댓글